Lansdown, Cheltenham
- £950-pcm
ABOUT THIS PROPERTY
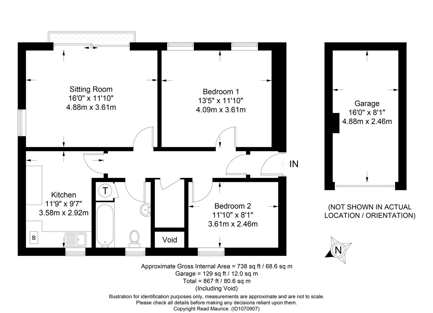
A well-proportioned two bedroom first floor flat, with lift access, forming part of this purpose built block. Entrance hall, sitting room, kitchen, bathroom, two bedrooms and a garage. Shared gardens.
ACCOMMODATION:
Entrance hall, sitting room, kitchen, 2 bedrooms and bathroom. Garage (in block)
ADDITIONAL:
Gas fired central heating to radiators.
Unfurnished.
No sharers, smokers or pets.
PARKING:
Un-allocated parking on the development & garage.
INCLUDED:
Gas cooker.
Washing machine.
Refrigerator/freezer.
TERM:
12 months minimum.
AVAILABLE:
Now
GENERAL
Services: All mains services are believed to be connected.
Local Authority: Cheltenham Borough Council.
Council Tax: Band C
EPC: C (77/80)
Parking: Unallocated on site plus a GARAGE.
DOWNLOADS
PROPERTY REEL
LOCATION MAP
OPEN GOOGLE MAPS-
Postcode: GL50 2PZ
CONTACT AGENT
More property from Agent
- Martin Read






