Farmington Road, Benhall, Cheltenham
- £425,000
ABOUT THIS PROPERTY
A traditional 3 bedroom semi detached family home located on a tree lined grass verged road west of central Cheltenham. The property has easy access to facilities and offers off street car parking and an enclosed 61’x28 south facing rear garden.
Benhall is a popular residential area to the west of central Cheltenham with the benefit of plenty of green spaces. Farmington Road is a wide tree lined road with grass verges and traditional semi detached and detached family homes.
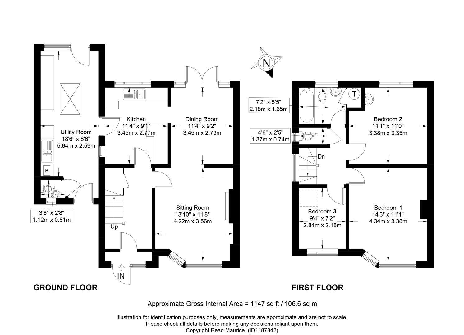
To the ground floor of this semi detached family house is a enclosed entrance porch, inner hall, a well fitted kitchen/breakfast room, dining room and to the front a pleasant sitting room with half bay window. To the side of the main living accommodation is a useful utility room which has access to both the front and rear gardens and a cloakroom. Stairs lead up from the inner hall to a naturally light first floor landing. off the landing are two double bedrooms and a smaller third bedroom together with a bathroom fitted with a white suite and a electric over bath shower. In addition there is a addition separate W.C.
Externally to the rear is a enclosed south facing garden (61’x28′) with a paved terrace adjoining the house and a level lawn beyond. To the bottom of the garden is a workshop/shed (10’x7′). The front garden is laid to a gravel bed interspersed with shrubs and off street car parking.
The property is well presented throughout and features gas fired central heating (boiler is in the roof space) and double glazing.
General
Tenure: Freehold
Services: All mains services are believed to be connected.
Local Authority: Cheltenham Borough Council.
EPC: D(60/84)
Council Tax: Band D
Parking: Off street drive parking.
Title Number: GR428
DOWNLOADS
LOCATION MAP
OPEN GOOGLE MAPS-
Postcode: GL51 6AG
MORTGAGE CALCULATOR
-
YOUR DEPOSIT
-
MORTGAGE REQUIRED
-
MONTHLY PAYMENT
CONTACT AGENT
More property from Agent
- Martin Read















