Merestones Drive, The Park, Cheltenham GL50 2SS
- £625,000
- £625,000
ABOUT THIS PROPERTY
An extended family house, coming to the market for the first time in 48 years, offering a great deal of potential located in a sought after residential district.
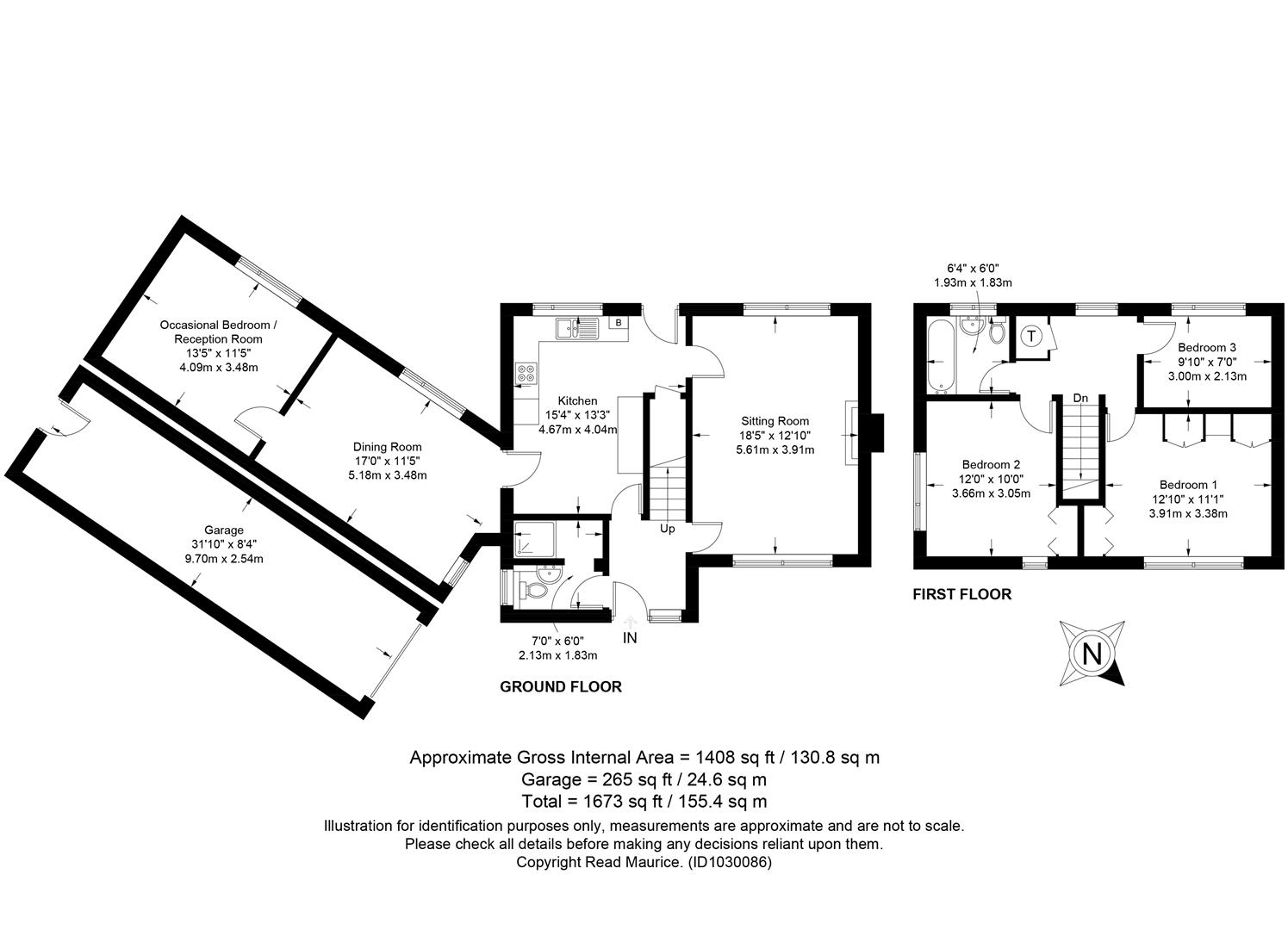
This family home offers great potential standing on a good sized plot with a large (c.88’x64′) south west facing rear garden. This house is coming to the market for the first time in some 48 years and provides the opportunity for improvement and enlargement to create a amazing family home, as many other owners have within the area.
The property has been extended to the ground floor and comprises of and entrance hall with cloak/shower room off, a double aspect sitting room, fitted kitchen, dining room and an additional snug/sitting room. Upstairs is a wide landing, three bedrooms (two with fitted wardrobes and a bathroom with a white suite. Outside, the mature rear garden has a high degree of privacy with lawn, shrubs and trees and to the front of the property is a double tandem garage.
The property is heated by a gas fired system to radiators and features double glazed windows.
Properties offering this kind of potential within this popular residential area rarely come available.
GENERAL
Services: All mains services are believed to be connected.
Local Authority: Cheltenham Borough Council.
Council Tax: Band E.
EPC: D (66/78)
Parking: A driveway gives access to a double tandem garage.
Title Number: GR49454
DOWNLOADS
PROPERTY REEL
LOCATION MAP
OPEN GOOGLE MAPS-
Postcode: GL50 2SS
MORTGAGE CALCULATOR
-
YOUR DEPOSIT
-
MORTGAGE REQUIRED
-
MONTHLY PAYMENT
CONTACT AGENT
More property from Agent
- Martin Read















