Montpellier Terrace, Cheltenham
- £995-pcm
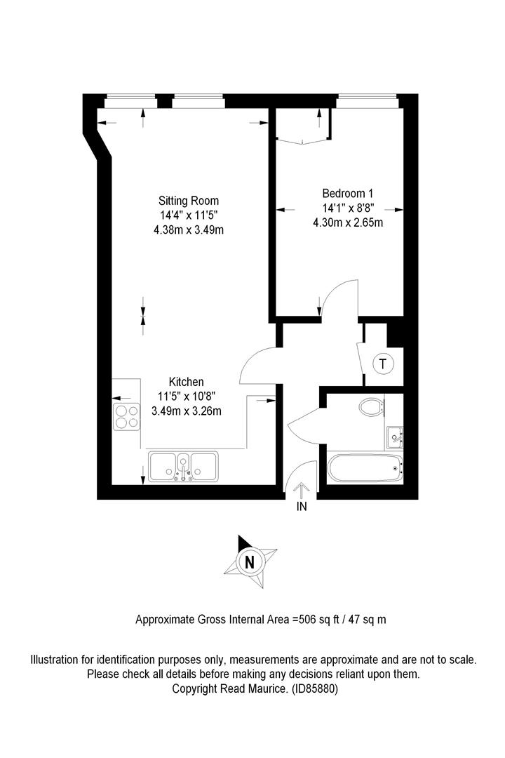
ABOUT THIS PROPERTY
Montpellier Apartments is a modern development of striking modern apartments and is conveniently located on the edge of Montpellier & the Bath Road in Cheltenham. This is property has one bedroom, large open plan living space with fitted kitchen and an allocated car parking space.
ACCOMMODATION:
Open plan sitting/dining room, fitted kitchen, 1 double bedroom and modern appointed bathroom.
PARKING:
Allocated underground parking.
ADDITIONAL:
Electric heating.
Double glazed windows.
Unfurnished.
INCLUDED:
Electric hob, oven, dishwasher, fridge, freezer and washing machine.
TERM
12 months minimum term. No pets. No smokers.
GENERAL:
Mains services are believed to be connected excluding gas.
VIEWING AND SHOWING TIMES:
Read Maurice show our rental property during weekdays only. No application may be made without a physical viewing of the property. For certain properties block viewings will be offered and you are advised to attend at the earliest opportunity if this property is of interest to you.
DOWNLOADS
LOCATION MAP
OPEN GOOGLE MAPS-
Postcode: GL50 1AF
CONTACT AGENT
More property from Agent
- Marc Vivet







